Ova nekretnina je prodata. Pogledajte našu trenutnu ponudu.

Prodaja,3.0 stan,Brace Jerkovic

BRACE JERKOVIC

67m 2
3.0
2.612 €/m2 ; 175.000 €

Najvažnije

Transakcija
Renta
Vrsta objekta
STAN
Godina gradnje
2010
Sprat
2/4
Struktura
3.0
Vrsta grejanja
eg
Lift
ne
Novogradnja
ne
Budite Prvi! Kliknite ovde i Pozovite ODMAH ️ 063/867-3560

O ovoj nekretnini

U mirnom delu naselja Brace Jerkovic, u zgradi novije gradnje, prodaje se odlican,
prostran i svetao trosoban stan,dvostrano orijentisan, u zgradi kvalitetne gradnje pri
cemu su korisceni materijali visokog kvaliteta. Zgrada je povucena od glavne
saobracajnice i okrenuta ka mirnom delu ulice. Stan je moderno dizajniran i pruza
sve sto je potrebno za udoban zivot. Prostran je i svetao, sa otvorenim konceptom
dnevnog boravka i trpezarije, stvarajuci prijatnu atmosferu za opustanje i uzivanje.
Kuhinja je pazljivo osmisljena kako bi se maksimalno iskoristio prostor. Spavace
sobe su udobne i mirne, idealne za odmor i relaksaciju, a prostor za skladistenje je
osiguran kroz ugradne plakare u hodniku i spavacim sobama. Dodatna pogodnost
je mogucnost iznajmljivanja parking mesta ispred zgrade. Povezanost sa ostalim
delovima grada je odlicna, a izlaz na autoput je brz i jednostavan. Lokacija stana je
izuzetno povoljna, u blizini se nalazi trzni centar Stadion, prodavnice, skole, vrtici,
dom zdravlja. Uz obilje zelenih povrsina u okolini, ovaj stan nudi savrsenu
kombinaciju prirodnog okruzenja i prakticnosti urbanog zivota. Idealna je prilika za
one koji traze moderan, udoban i funkcionalan zivotni prostor.

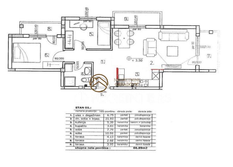
Od prostorija, ova nekretnina poseduje: Hodnik, dnevni boravak sa trpezarijom, kuhinja, dve spavace sobe, kupatilo, lodja, dve terase.

Dodatna dokumentacija: Uknjizen

Tlocrt stana


Dodatno

Internet
Klima
Godina gradnje: 2010
Pozovite nas za ovaj stan