3.5 stan, centar - fantasticna lokacija

MILUTINA BOJICA

73m 2
3.5
4.247 €/m2 ; 310.000 €

Najvažnije

Transakcija
Prodaja
Vrsta objekta
STAN
Godina gradnje
1934
Sprat
4/5
Struktura
3.5
Vrsta grejanja
cg
Lift
da
Novogradnja
ne
Budite Prvi! Kliknite ovde i Pozovite ODMAH ️ 063/867-3560

O ovoj nekretnini

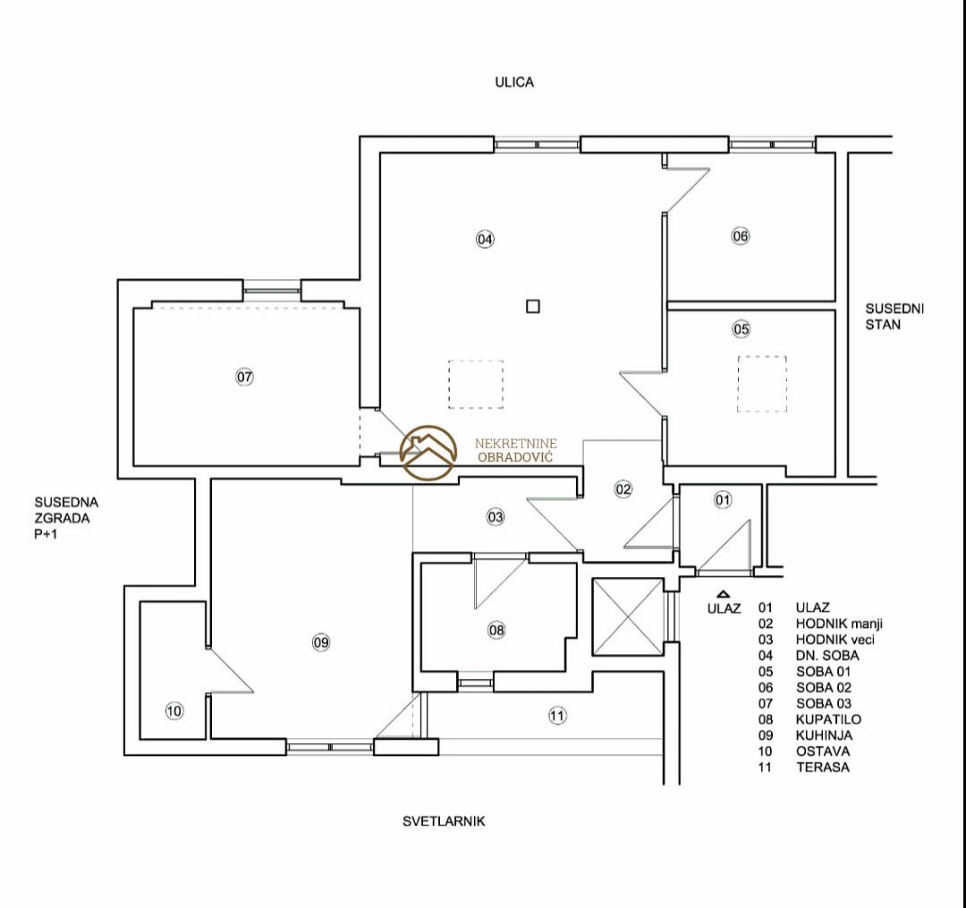
Predstavljamo vam jedinstvenu priliku za kupovinu stana od 73m2 izmerene
povrsine(uknjizen na 64m2) na jednoj od najvrednijih starogradskih mikrolokacija.

Stan je pozicioniran na cetvrtoj od pet etaza(lift do stana), dvostrano orijentisan
vecim delom prema ulici i pruza mogucnosti za razlicite unutrasnje prostore, stukture
i ambijente(vecina zidova je pregradna).

Krov iznad stana je nov sa mogucnoscu podizanja kako bi se dobio prostor za
galeriju. Stambena jedinica je delimicno renovirana i po sadasnjem rasporedu
poseduje dnevnu zonu, dve spavace sobe, garderober sobu, kuhinju sa trpezarijom i
odvojenom ostavom, kupatilo, degazman i terasu.

Nekretnina prilagodjena klijenteli koja zeli da kreira prostor po svojoj meri(idealne
mogucnosti za loft-stil), na gotovo pefektnoj lokaciji.

Zgrada je ocuvana, reprezentativna, sa elegantnim ulazom i pre izvesnog vremena
obnovljenom fasadom.

Pripadajuci podrum.

Preporuka.

Agencijska provizija za kupca 2%.(Minimalna provizija 1000e)

Od prostorija, ova nekretnina poseduje: Ulazni prostor, dnevni boravak, dve sobe, soba/garderober, kuhinja sa trpezarijom, kupatilo, degazman, ostava, terasa.

Dodatna dokumentacija: Uknjizen

Tlocrt stana


Dodatno

Internet
Klima
Godina gradnje: 1934
Pozovite nas za ovaj stan