Kosancicev venac, 3.0 – fantastican

KOSANCICEV VENAC

93m 2
3.0
5.108 €/m2 ; 475.000 €

Najvažnije

Transakcija
Prodaja
Vrsta objekta
STAN
Godina gradnje
1930
Sprat
3/4
Struktura
3.0
Vrsta grejanja
eg
Lift
ne
Novogradnja
ne
Budite Prvi! Kliknite ovde i Pozovite ODMAH ️ 063/867-3560

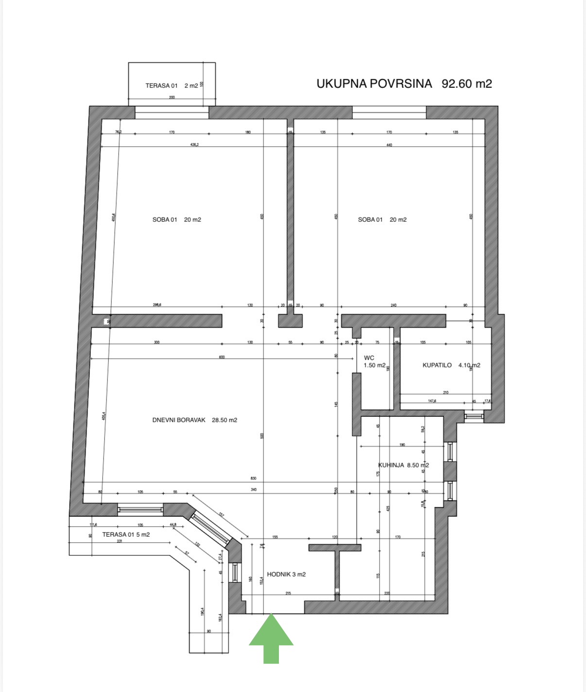
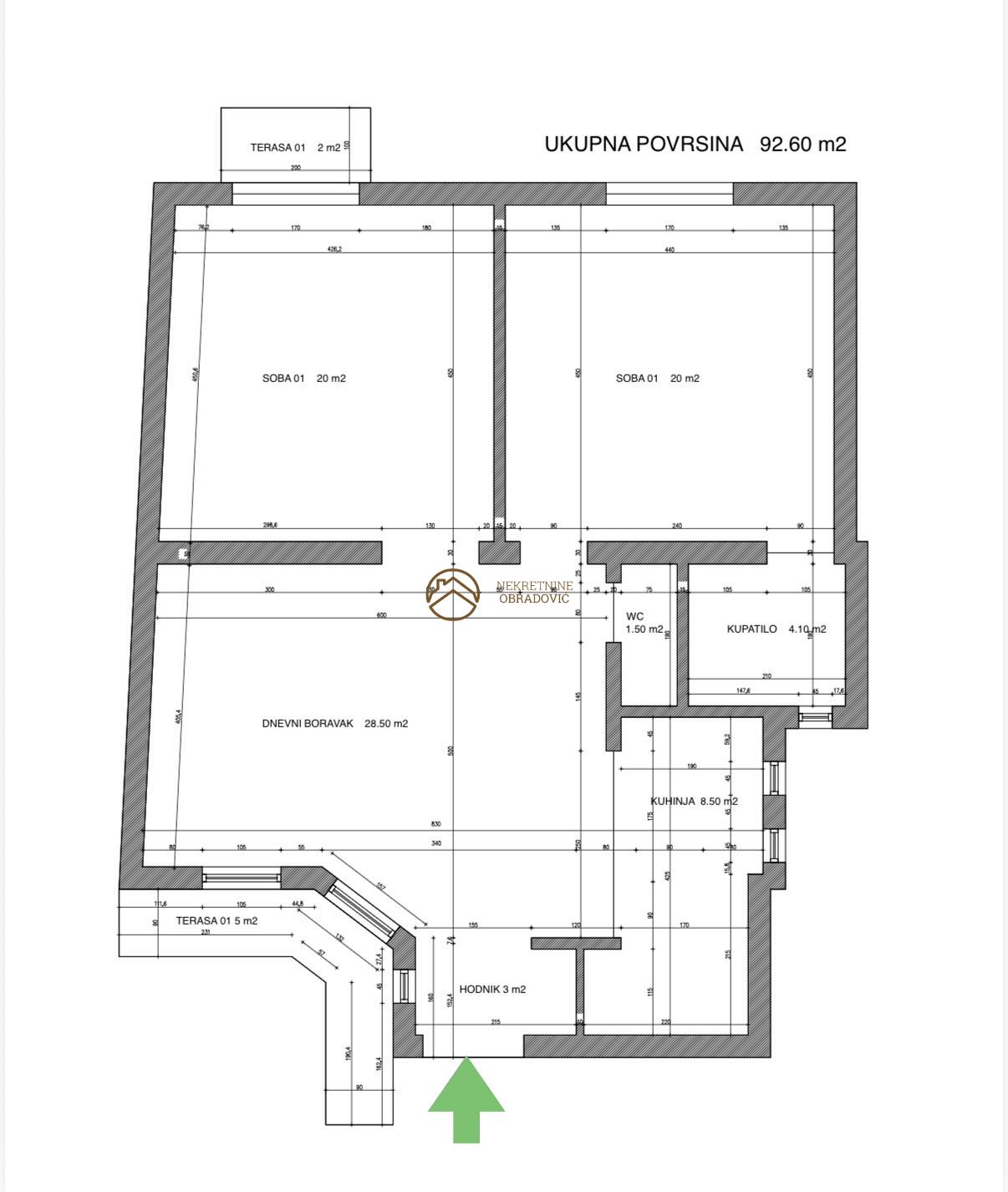
O ovoj nekretnini

Predstavljamo vam ekskluzivnu ponudu, kompletno adaptiran i luksuzno renoviran
stan na Kosancicevom vencu.

Impresivna trosobna nekretnina, pozicionirana na trecoj od cetiri etaze(bez lifta). Stan
je trostrano orijentisan, izuzetno osvetljen, intiman i komforan, projektovan da pruzi
vanvremenski ambijent.

Tokom adaptacije vodilo se racuna o svakom detalju. Izdvajamo tri raskosne
prostorije(dve spavace sobe i dnevnu zonu, koje se mogu kombinovati prema
potrebama), komfornu i sankom izdvojenu kuhinju, master kupatilo sa podnim
grejanjem, toalet sa vesernicom, etaznu regulaciju temperature putem displeja, dva
ulaza.

Stan je trenutno u zakupu od strane ambasade, kupac preuzima ugovor koji je vazeci
do leta 2027.godine, sto garantuje pouzdanost i sigurnost investicije.

Zgrada odise duhom starog Beograda, odrzavana je, sa novom fasadom i malim
brojem stambenih jedinica.

Retka prilika za klijente koji traze savrsenu ravnotezu izmedju istorijske lokacije,
mirnog okruzenja i enterijera najviseg kvaliteta. Ne kupuje se samo stan vec i deo
najvrednijeg nasledja Beograda.

Nekretnina je ukupne originalne povrsine 93m2 sa terasama(uknjizen na 78m2 bez
tereta i zabelezbi).

Preporuka.


Agencijska provizija za kupca 2%.(Minimalna provizija 1000e)

Od prostorija, ova nekretnina poseduje: Antre, dnevna zona sa trpezarijom, dve spavace sobe, uvucena kuhinja odvojena sankom, master kupatilo, toalet sa vesernicom, dve terase.

Dodatna dokumentacija: Uknjizen

Tlocrt stana


Dodatno

Internet
Klima
Godina gradnje: 1930
Pozovite nas za ovaj stan




Slične nekretnine