Izdajemo izuzetan poslovni prostor, u centru Beograda,na atraktivnoj lokaciji u Knez Mihajlovoj ulici.
Pogodan je za firme raznih profila koje imaju vise zaposlenih.
Jugoistocno je orijentisan i vrlo svetao.
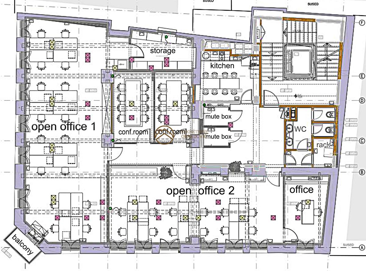
Prostor se sastoji od dve velike prostorije za desetak i vise zaposlenih,dve sale za sastanke,
Izdvojene kancelarije,dve izolovane prostorije(mute box),kuhinje,dva toaleta,ostave…
U blizini, na par minuta hoda su javne garaze (Obilicev venac i Rajiceva)
kao i linije gradskog prevoza (Studentski trg, Terazije i Zeleni venac),
restorani,kafici,banke i sve ostalo sto pruza centralna pozicija velikog grada.
Prostor je trenutno u zavrsnoj fazi renoviranja.Uslov primopredaje po dogovoru.
Cena je bez pdv-a
Agencijska provizija 50% od prvog zakupa.
Od prostorija, ova nekretnina poseduje:
Dve velike prostorije otvorenog tipa svaka za maksimalno 12 do 14 osoba, dve sale za sastanke, kancelarija, ostava, kuhinja, dva toaleta, dve prostorije(mute box).